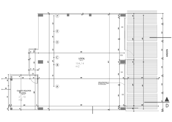
Área total:
194.14 m² distribuidos en un piso
Comodidad y accesibilidad:
Cuenta con 5 parqueaderos exclusivos.
Fachada de vidrio:
Máxima visibilidad y proyección para tu negocio
Cuarto equipados:
Ideal para garantizar funcionalidad y soporte a tu operación comercial.

Local: Entrelagos Conjunto Residencial
En el corazón de Cartagena, el Conjunto Residencial Entrelagos ofrece un local comercial único, ideal para quienes buscan invertir en un espacio con alto potencial de crecimiento. Su ubicación estratégica en el tradicional barrio Torices lo convierte en el lugar perfecto para emprender o expandir tu negocio, rodeado de un entorno residencial y con excelente proyección comercial.
Ubicación
Cuéntanos tu solicitud
Características principales:
Este local comercial en el Conjunto Residencial Entrelagos, en el barrio Torices de Cartagena, cuenta con un área total de 194,14 m² en primer piso, una amplia fachada en vidrio con frente de 12,09 metros, y la comodidad de cinco parqueaderos exteriores. Su diseño moderno incluye un espacio destinado a cuarto de equipos, lo que lo hace ideal para distintos tipos de negocios que buscan visibilidad, accesibilidad y funcionalidad en una zona de gran proyección.
Plano descriptivo
Fachada
- Área 12.09 m2
- Exterior con 5 parqueaderos
- Fachada en vidrio
Plano descriptivo
Planta
- Área 194.14 m2
- Cuarto de equipos